欢迎光临江苏杰康环保工程有限公司!! 设为首页 | 加入收藏 | 联系我们
logo
 
电话: 0510—87339296
传真: 0510—87339295
手机: 15861515561
地址: 江苏省宜兴市高塍镇后杨路7号
邮箱: ck@yxjkhb.com.cn
 
 
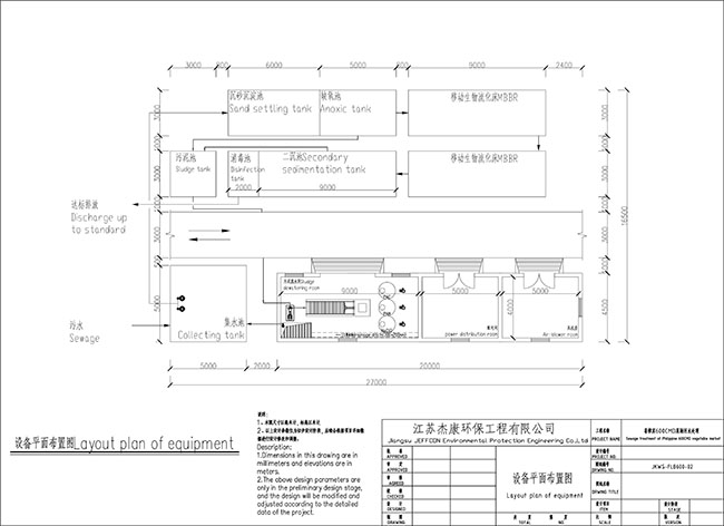
环保资讯 位置:网站首页 - 菲律宾 600CMD 综合污水处理工程 600CMD Integrated Sewage Treat
菲律宾 600CMD 综合污水处理工程 600CMD Integrated Sewage Treat
  • 作者:    来源:江苏杰康环保工程有限公司    时间:2024/4/22    点击:1670

菲律宾 600CMD 综合污水处理工程 

600CMD Integrated Sewage Treatment Project in the Philippines



 
版权所有(C) 2016 All Rights Reserved.江苏杰康环保工程有限公司 
联系人:陈先生 电 话:0510—87339296 传 真:0510—87339295
地 址:江苏省宜兴市高塍镇后杨路7号 E-Mali:ck@yxjkhb.com.cn

苏公网安备 32028202000765号

苏ICP备15062752号-1